We Invented Pocono Mountain Modern Homes
We Make It Easy:
Now you can learn everything you need to know about having a new Pocono Home built with just a simple phone call. Click here to
SCHEDULE A FREE PHONE CONSULTATION.
What makes Mountain Modern different?
- Use of wood and stone accents and exteriors
- Multiple, complimentary roof lines
- Custom, colored windows and trims
- Inviting more natural light
- More recessed lighting and more vaulted ceilings
- More open and versatile spaces
- Lower maintenance
- Open, custom kitchens with islands capped in granite or quartz
- High-efficiency, zoned heating and cooling
- Durable, low-maintenance vinyl flooring options
The Boulder Creek
THE BOULDER CREEK
Floor plan shown is Boulder Creek I (820 sq ft) top.
1200 sq ft (3 bedroom), below. .


This Mountain Modern ranch packs great style and design into an affordable yet spacious home. The Boulder Creek 1 serves as a great little vacation home, while the II and II offer a bit more space for vacationers, retirees, or just those looking to downsize from a larger home. The Boulder Creek II and II include a large eating island, stone fireplace, larger great room and a stamped concrete patio.
Each model features a spacious great room, dual master suites, 2 baths, black windows and trims, premium maintenance-free vinyl siding, and high efficiency heating and cooling. This is an easy to maintain homes that is super energy efficient to operate.
Boulder Creek I - 820 sq ft ~ 2 bedroom master suites ~
$319,900 - Other Pocono Counties
$329,900 - Carbon County
$349,900 - Other Pocono Counties
$399,900 - Other Pocono Counties
Features:
- Single story living
- 2 master suite bedrooms
- 3 bedrooms on the Boulder Creek III.
- Walk-in showers or tub/shower combo
- Vaulted ceiling
- Granite or Quartz counters
- Large Eating Island (on the II or III)
- Stainless steel kitchen appliances
- LPG stone fireplace (on the II or III)
- High efficiency, zoned heating and cooling
- Andersen, energy-efficient egress windows
- Premium maintenance-free vinyl siding
- Stamped concrete patio (on the II or III)
The Cypress
$499,900 - Other Pocono Counties
$579,900 - Carbon County
$589,900 - Other Pocono Counties
- Single Story - 4 available sizes
- 1330 - 1870 square feet
- 3-4 bedrooms with vaulted ceilings
- 2 - 3 bath
- 2 - 3 Master suite(s)
- Optional office space
- Great room with vaulted ceilings
- Stone or tile fireplace
- Custom kitchen with granite or quartz counters
- Stylish appliances
- Built-in pantry
- High efficiency, zoned heating and cooling
- Andersen, energy-efficient egress windows
- Elegant stone features
- Premium maintenance-free wood-grain vinyl siding
- Wood siding optional
- Stamped concrete patio
- Optional garage
The Landon
$469,900 - Other Pocono Counties
- Craftsman Style 2-story
- Mudroom or formal entry
- 1600 square feet under roof
- Optional 3 or 4 bedroom design
- 2 baths
- 2 Master Suites
- Coffee deck off Master Suite loft
- Great room with vaulted ceilings
- Stone fireplace
- Custom kitchen with granite or quartz counters
- Stylish appliances
- Eating island for 12
- High efficiency, zoned heating and cooling
- Andersen, energy-efficient egress windows
- Elegant stone features
- Premium maintenance-free wood-grain vinyl siding
- Covered front porch
- Stamped concrete patio
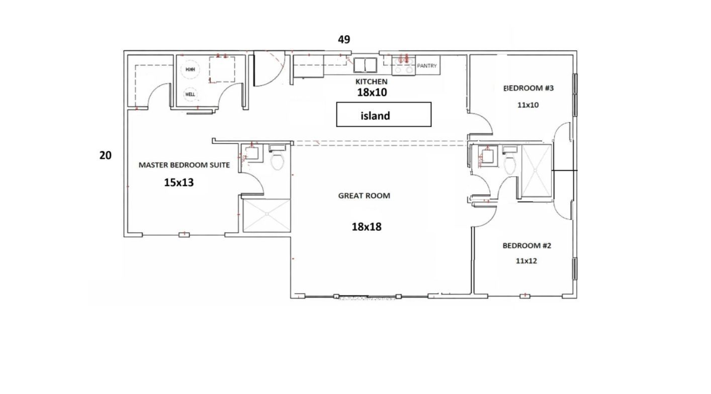
The Clear View
THE CLEAR VIEW COTTAGE
1728 sq feet under roof: 3 bedroom / 2 bath
$469,900 - Carbon County
$489,900 - Other Pocono Counties
Features:
- Single story living
- 1728 square feet under roof
- Large covered patio
- 3 bedrooms: 2 baths
- Vaulted ceiling with clear story glass
- Granite or quartz counters
- Kitchen appliances
- High efficiency, zoned heating and cooling
- Andersen, energy-efficient egress windows
- Premium maintenance-free vinyl siding
- Stamped concrete patio
- Stone fireplace
- Optional garage
This Mountain Modern Cottage features a very large great room, an eating-island kitchen and a large covered patio.
Its 3 bedrooms include a large master suite with walk-in tile shower and his-and-her closets.
You have 6 premium siding colors to choose from and your choice of interior paint and stain colors.
This home lets in lots of natural light and has a rear entry for an optional stamped concrete patio. This will make a great mountain modern getaway, short-term rental, or even the right size home to retire to.
The Serenity
$599,900 - Carbon County
- Two- Story
- 3 bedroom
- 2 1/2 bath
- First-floor master suite
- Great room
- Stone fireplace
- Custom kitchen with granite or quartz counters
- Stylish appliances
- High efficiency, zoned heating and cooling
- Andersen, energy-efficient egress windows
- Elegant stone features
- Premium maintenance-free wood-grain vinyl siding
- Wood exterior optional
- Stamped concrete patio
The Hemlock
- Two Story
- 2130 square feet under roof, including 1-car garage
- 3-4 bedroom
- 2 1/2 bath
- Great room
- Stone or tile fireplace
- Custom kitchen with granite or quartz counters
- Stylish appliances
- Pantry
- High efficiency, zoned heating and cooling
- Andersen, energy-efficient egress windows
- Elegant stone features
- Premium maintenance-free wood-grain vinyl siding
- Wood exterior optional
- Covered patio in front
- Rear deck
- Garage included
The Mahogany
- Single Story
- 2200 Sq Ft Under Roof
- 3-4 bedroom
- Dual Master Suites Optional
- 2 baths
- Great room
- Stone or tile fireplace
- Custom kitchen with granite or quartz counters
- Stylish appliances
- Pantry
- High efficiency, zoned heating and cooling
- Andersen, energy-efficient egress windows
- Premium maintenance-free wood-grain vinyl siding
- Wood exterior optional
- Covered patio - front
- Stamped concrete patio - rear
The Sassafras
- Single story living
- 2600 square feet under roof
- 3 - 4 bedroom
- Dual master suites
- 3 bath
- Great room with vaulted ceilings
- Custom kitchen with granite or quartz counters
- Stylish appliances
- Pantry
- High efficiency, zoned heating and cooling
- Andersen, energy-efficient egress windows
- Premium maintenance-free wood-grain vinyl siding
- Wood exterior optional
- Covered entry - front
- Stamped concrete patio - rear
- Garage included - convert to living space optional
The Stonebrook
3050 sq ft under roof
$799,900 - Carbon County
- Two-Stories
- 3050 square feet
- 4 or 5 bedroom
- 3 1/2 bath
- Dual master suites
- Great room w/ 10' ceilings
- Stone fireplace
- Custom kitchen with granite or quartz counters
- Stylish appliances
- Built-in pantry
- High efficiency, zoned heating and cooling
- Andersen, energy-efficient egress windows
- Premium wood-grain vinyl siding
- Wood exterior optional
- Covered porch
- Rear second-story deck
- Stamped concrete patio
- Custom exterior stone work
- Attached garage optional















